Work
IN PROGRESS
NEWS
Info
Contact
Menu
Kleinmann Architects
Work
IN PROGRESS
NEWS
Info
Contact
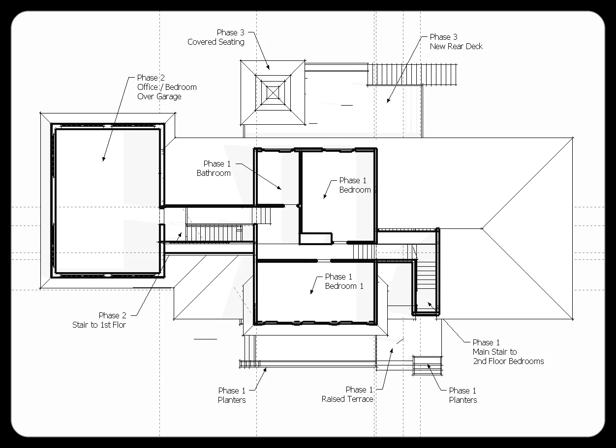
Bolbach Residence
View fullsize
View fullsize
View fullsize
View fullsize